Описание
АПД-12,5: криогенная система контроля давления для резервуаров CO2. Агрегат поддержания давления АПД-12,5 — это криогенная установка для автоматического регулирования давления в резервуарах с жидкой углекислотой. Система предотвращает потери продукта из-за испарения и обеспечивает длительное хранение CO2 с сохранением его качественных характеристик.
Применяется на опасных производственных объектах, предприятиях пищевой, химической и металлургической промышленности. Совместим со стационарными резервуарами объемом 12,5 м3 (РДХ-12,5) и транспортными цистернами.
Преимущества и особенности эксплуатации
- Полностью автоматизированная работа без постоянного контроля оператора — надежная система управления снижает трудозатраты и вероятность человеческой ошибки.
- Эффективная конденсация паров углекислоты через высокоэффективный теплообменник обеспечивает минимальные потери продукта.
- Индивидуальный расчет и настройка под конкретные параметры емкости (объем, рабочее давление) для оптимальной работы.
- Соответствие техническим регламентам ЕАЭС позволяет эксплуатировать систему на ОПО и в условиях повышенных требований безопасности.
- Гарантированная компенсация внешних теплопритоков поддерживает стабильное давление в резервуаре при изменении окружающих условий.
- Совместимость с углекислотой высшего и первого сорта по ГОСТ 8050-85 обеспечивает сохранение качества продукта.
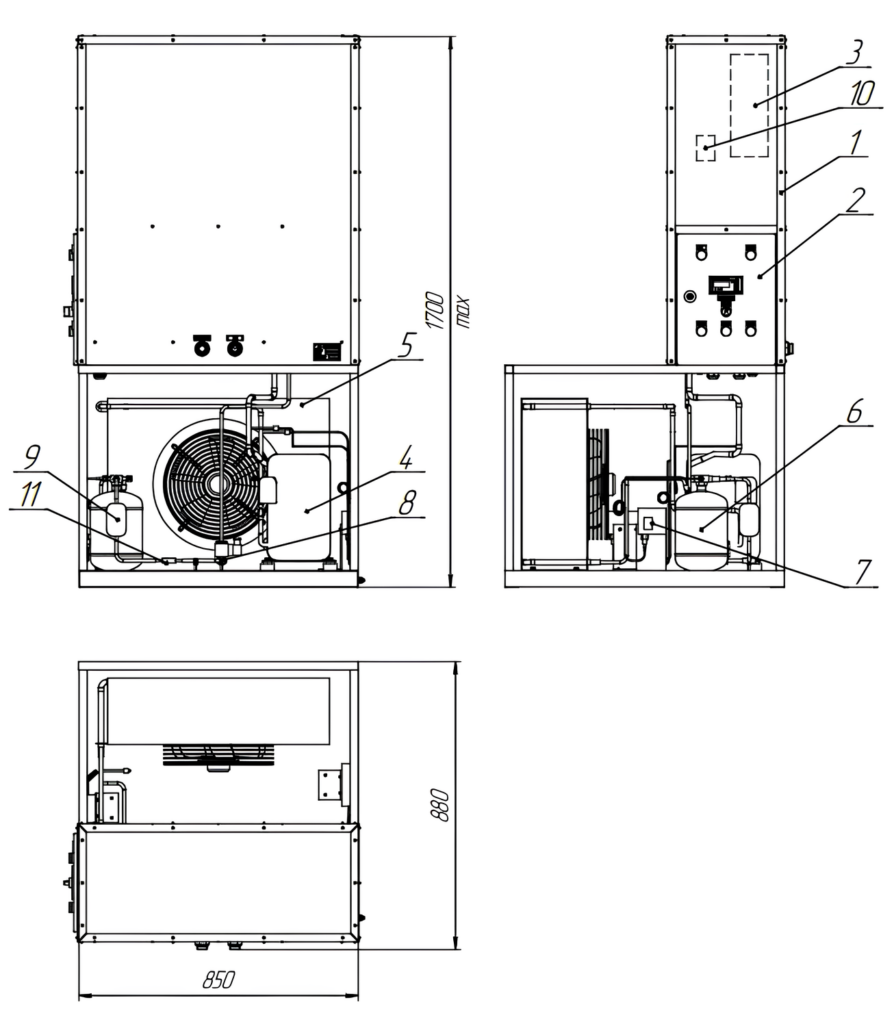
Принцип работы и основные компоненты
Основная задача агрегата АПД-12,5 — охлаждать жидкую углекислоту в резервуаре и поддерживать заданную температуру, необходимую для предотвращения избыточного давления и сохранения качества CO2. Холодильный агрегат, используемый в системе поддержания давления, управляет температурой и балансом фаз углекислоты, что повышает безопасность и стабильность длительного хранения.
Ключевые компоненты холодильного агрегата АПД включают:
- Спиральный теплообменник: спиральные трубки, проходящие через резервуар, обеспечивают эффективный теплообмен между хладагентом и жидкой углекислотой.
- Компрессор: сжимает хладагент и обеспечивает его циркуляцию в холодильном цикле, создавая необходимое давление и температуру для охлаждения CO2.
- Конденсатор: отводит тепло, извлеченное из углекислоты, и конденсирует хладагент обратно в жидкую фазу, рассеивая тепло в окружающую среду.
- Испаритель: испаряет жидкий хладагент, поглощая тепло из углекислоты и снижая её температуру до расчетного значения.
- Реле давления: контролирует давление среды в резервуаре и подает сигнал на включение компрессора при достижении верхнего предела.
- Термостат: поддерживает заданную температуру углекислоты, управляя работой компрессора и рециркуляцией хладагента.
При использовании внешнего агрегата АПД резервуар длительного хранения (РДХ) охлаждается до требуемого уровня, что удерживает давление внутри контейнера в допустимых пределах и повышает безопасность хранения углекислоты.
Доступные модификации
- АПД-12,5 с внутренним теплообменником: решение для вертикальных и горизонтальных резервуаров со встроенными трубчатыми теплообменными системами, обеспечивающее компактную и эффективную интеграцию.
- АПД-12,5 с внешним теплообменником: комплектуется автономным компрессорно-конденсаторным блоком и пластинчатым теплообменником — оптимален для емкостей без внутренних теплообменных элементов и при необходимости упрощенного обслуживания.
Сравнение с альтернативными решениями
Традиционные методы контроля давления часто включают сброс паров в атмосферу, что приводит к потерям продукта и нарушению экологических норм. Электрические испарители потребляют значительную энергию и не обеспечивают эффективного контроля давления при изменениях тепловых нагрузок.
АПД-12,5 оказывается более эффективным решением: он полностью исключает потери CO2, поддерживает оптимальные условия хранения и снижает эксплуатационные расходы за счет автоматизации и высокой энергоэффективности.
Гарантия и срок службы
Гарантийный период эксплуатации — 2 года. Расчетный срок службы оборудования — до 10 лет при соблюдении регламентных требований по обслуживанию.
Для консультаций и заказа агрегата обращайтесь в СпецКриоГаз по телефону +7 (922) 030-32-30.








