Описание
Современное криогенное оборудование АПД-22,5 предназначено для автоматического контроля и стабилизации давления в резервуарах с жидкой углекислотой (CO2). Установка минимизирует испарение продукта и обеспечивает длительное хранение без изменения ключевых свойств углекислоты.
Решение особенно востребовано на промышленных объектах повышенной опасности, в металлургии, химической и пищевой промышленности. Совместимо со стационарными резервуарами РДХ-22,5 объёмом 22,5 м3 и транспортными цистернами.
Ключевые преимущества системы
- Автономная работа без постоянного контроля персонала
- Эффективная конденсация паров CO2 на поверхности теплообменника
- Проектирование с учётом индивидуальных параметров заказчика
- Соответствие техническим регламентам ЕАЭС для эксплуатации на ОПО
- Полная нейтрализация внешних тепловых воздействий
- Работа с углекислотой высшего и первого сорта по ГОСТ 8050-85
Варианты конструктивного исполнения
В зависимости от конструкции резервуара доступны два варианта исполнения агрегата:
- С внутренним теплообменником: Предназначен для резервуаров со встроенными теплообменными системами, обеспечивая компактную и эффективную схему охлаждения.
- С внешним теплообменником: Выполняется с автономным холодильным модулем и пластинчатым теплообменником — оптимальное решение для емкостей без встроенного теплообмена.
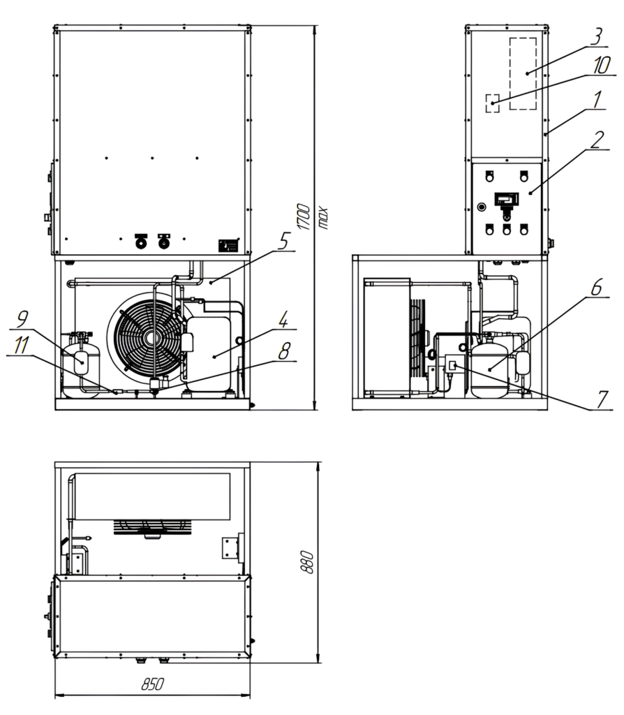
Принцип работы и основные компоненты
Основная задача АПД-22,5 — охлаждать жидкую углекислоту в резервуаре для поддержания заданной температуры и предотвращения образования избыточного давления, а также для сохранения качества CO2 при длительном хранении. Холодильный агрегат поддержания давления обеспечивает управление температурой и стабильность условий хранения, что повышает безопасность и надёжность процесса.
Холодильный агрегат включает ключевые компоненты:
- Спиральный теплообменник: Спиральные трубки проходят через резервуар и обмениваются теплом с циркулирующим хладагентом, обеспечивая эффективное охлаждение жидкости.
- Компрессор: Сжимает хладагент и обеспечивает его движение по холодильному циклу, формируя давление и температуру, необходимые для охлаждения углекислоты.
- Конденсатор: Отводит тепло, извлечённое из углекислоты, и конденсирует хладагент в жидкость, рассеивая тепло в окружающую среду.
- Испаритель: Испаряет жидкий хладагент, поглощая тепло из углекислоты и снижая её температуру до требуемого уровня.
- Реле давления: Контролирует давление в резервуаре и подаёт сигнал на включение компрессора при достижении установленного верхнего предела, обеспечивая автоматическую защиту системы.
- Термостат: Поддерживает заданную температуру углекислоты, регулируя работу компрессора и циркуляцию хладагента для стабильного режима работы.
При использовании внешнего агрегата АПД резервуар длительного хранения (РДХ) охлаждается до необходимой температуры, что позволяет поддерживать требуемое давление внутри ёмкости и обеспечивает безопасное, стабильное хранение углекислоты.
Преимущества перед традиционными методами
Традиционные способы регулирования давления — атмосферный сброс паров и электрические испарители — имеют ряд недостатков: потери продукта, риск нарушения экологических норм и высокое энергопотребление.
АПД-22,5 обеспечивает высокую эффективность, полностью исключает потери CO2 и создаёт оптимальные условия для хранения криогенных продуктов при минимальных эксплуатационных затратах.
Гарантийное обслуживание и срок службы
Официальная гарантия составляет 24 месяца. Расчётный срок эксплуатации — до 10 лет.
Для оформления заказа и получения технической консультации обращайтесь в СпецКриоГаз по телефону +7 (922) 030-32-30.








