Описание
Агрегат поддержания давления АПД-25,0 разработан для автоматического поддержания рабочего давления в резервуарах и транспортных цистернах с жидкой углекислотой CO2 (рабочее давление от 18 кгс/см2). Устройство предотвращает потери продукта из‑за естественного испарения и обеспечивает длительное хранение углекислоты с сохранением её качества.
Применяется на промышленных объектах различных отраслей — от пищевого производства до металлургии. Совместим со стационарными резервуарами типа РДХ объемом до 25 м3 и с транспортными цистернами ЦЖУ, где требуется стабильное давление и минимизация потерь CO2.
Технические преимущества и особенности
- Полностью автоматизированный рабочий цикл без участия оператора, обеспечивает стабильную работу 24/7
- Эффективная конденсация паровой фазы CO2 на поверхности теплообменника для минимизации испарений
- Индивидуальный расчет производительности под параметры конкретной ёмкости и режим хранения
- Соответствие техническим регламентам ЕАЭС, пригоден для эксплуатации на опасных производственных объектах (ОПО)
- Работа с углекислотой высшего и первого сорта по ГОСТ 8050-85
- Компенсация внешних теплопритоков и стабилизация температурно‑давления для сохранения качества продукта
Принцип работы и основные компоненты
Основная задача АПД — охлаждать жидкую углекислоту в резервуаре, поддерживая заданную температуру и тем самым предотвращая образование избыточного давления. Холодильный агрегат обеспечивает управление температурой и давлением, поддерживая оптимальные условия хранения и повышая безопасность процесса.
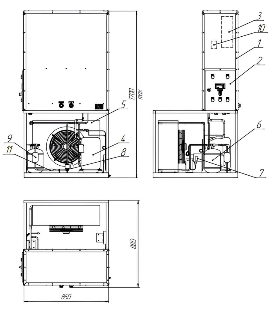
Холодильный агрегат поддержания давления включает следующие ключевые компоненты, обеспечивающие надежную работу системы:
- Спиральный теплообменник: спиральные трубки проходят через резервуар и выполняют теплообмен с циркулирующим хладагентом, эффективно отводя тепло от CO2.
- Компрессор: сжимает хладагент и обеспечивает его циркуляцию в холодильном контуре, создавая давление и температуру, необходимые для охлаждения.
- Конденсатор: отводит тепло, извлеченное из углекислоты, конденсируя хладагент и сбрасывая тепло в окружающую среду.
- Испаритель: испаряет жидкий хладагент, поглощая тепловую энергию из углекислоты и понижая её температуру до заданной.
- Реле давления: контролирует давление в резервуаре и подаёт сигнал на включение компрессора при достижении верхнего предела расчётного давления.
- Термостат: поддерживает заданную температуру углекислоты, регулируя работу компрессора и рециркуляцию хладагента.
При использовании внешнего агрегата АПД резервуар длительного хранения (РДХ) охлаждается до требуемых параметров, что позволяет удерживать необходимое давление внутри ёмкости и обеспечивает стабильность и безопасность хранения углекислоты.
Варианты конструктивного исполнения
С внутренним теплообменником: Предназначен для вертикальных и горизонтальных резервуаров со штатными трубчатыми теплообменными системами. Оптимален для РДХ с предустановленными контурами охлаждения.
С внешним теплообменником: Комплектуется автономным компрессорно‑конденсаторным блоком и пластинчатым теплообменником. Наиболее подходящее решение для ёмкостей без встроенных систем охлаждения, обеспечивает автономную работу агрегата.
Сравнение с традиционными методами
Традиционные способы регулирования давления — атмосферный сброс паров и электрические испарители — приводят к значительным потерям криопродукта, увеличенному энергопотреблению и нестабильным рабочим параметрам.
АПД-25,0 обеспечивает более высокую эффективность: исключает потери CO2, поддерживает стабильное давление и температуру в резервуаре при низких эксплуатационных затратах.
Гарантия и техническая поддержка
Гарантийный срок эксплуатации — 2 года с момента ввода оборудования в работу. Агрегат может поставляться на монтажной раме для удобства установки, эксплуатации и обслуживания.
Производитель предоставляет техническую поддержку и сервис на протяжении всего жизненного цикла оборудования. Для подбора оптимальной конфигурации необходимо предоставить данные об объёме ёмкости и рабочем давлении в системе.
Для оформления заказа и получения консультации обращайтесь в СпецКриоГаз Челябинск по телефону +7 (922) 030-32-30.










