Описание
Агрегат поддержания давления АПД-40,0 — это специализированная установка, используемая для стабилизации рабочего давления в резервуарах, предназначенных для длительного хранения или транспортировки сжиженной углекислоты. Основная задача устройства — нейтрализовать повышение давления, возникающее из-за внешних тепловых воздействий, что обеспечивает практически неограниченный срок хранения жидкой CO₂ без потерь на испарение.
Оборудование применяется совместно со стационарными хранилищами (такими как РДХ) и транспортными цистернами. АПД-40,0 работает с жидкой двуокисью углерода первого сорта по ГОСТ 8050-85 и предназначен для ёмкостей объёмом 40 м³ с рабочим давлением от 18 кгс/см².
Преимущества АПД от СпецКриогаз
Приобретая агрегаты поддержания давления АПД-40,0 у компании «СпецКриогаз» (Челябинск), вы получаете технологичное и надежное оборудование со следующими ключевыми преимуществами:
- Два варианта исполнения: для стационарных резервуаров и транспортных цистерн.
- Автоматизация работы: функционирование в непрерывном режиме без необходимости постоянного присутствия оператора.
- Универсальность монтажа: возможность установки в помещении или на улице под навесом.
- Широкий температурный диапазон: стабильная работа при температурах от -40°С до +40°С.
- Качественные комплектующие: использование компонентов ведущих мировых производителей (Siemens, Danfoss, Copeland и др.).
- Современная система управления: наличие электронного блока управления для визуального контроля и точной регулировки давления.
- Многоуровневая защита: защита от короткого замыкания, перепадов напряжения, а также аварийное отключение при неисправности компрессора или утечке хладагента.
- Экологичность: применение озонобезопасного хладагента R404A.
- Быстрый запуск: для ввода в эксплуатацию требуется только подключение к электросети и коммуникациям СО₂.
- Удобство обслуживания: продуманная конструкция обеспечивает легкий доступ к основным узлам для сервиса.
Модификации АПД-40,0 с внешним и внутренним теплообменником
Компания «СпецКриогаз» выпускает две основные модификации агрегата, ориентированные на разные типы криогенных систем:
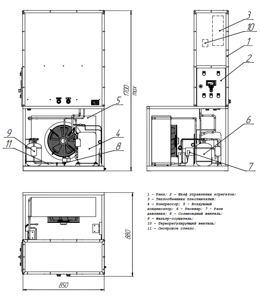
АПД-40,0 с внутренним теплообменником: Эта версия разработана для резервуаров, имеющих в своей конструкции встроенные медные трубчатые теплообменники. Стабилизация давления в них происходит за счёт охлаждения и конденсации газообразной фазы CO₂ на поверхности внутреннего теплообменного устройства.
АПД-40,0 с внешним теплообменником: Данная модификация используется для цистерн или резервуаров, не укомплектованных штатными теплообменниками. Агрегат включает компрессорно-конденсаторный блок и высокоэффективный пластинчатый теплообменник, где и осуществляется конденсация паров диоксида углерода.
Обе модификации проектируются и изготавливаются под конкретные параметры ёмкости Заказчика.
Условия эксплуатации
Агрегат поддержания давления АПД-40,0 отличается высокой степенью автономности — он работает в полностью автоматическом режиме без участия оператора. Конструкция устройства позволяет эксплуатировать его в широком диапазоне температур окружающей среды: от -40°С до +40°С. Агрегат универсален с точки зрения размещения: возможен монтаж как внутри помещений, так и на открытых площадках под навесом. Для ввода в работу необходимо лишь подключение к электрической сети и присоединение к коммуникациям резервуара с СО₂.
«СпецКриогаз» из Челябинска — один из ведущих поставщиков оборудования для работы с углекислотой. Множество наших АПД успешно работают по всей России и в странах СНГ. Мы гарантируем соблюдение сроков поставки, наличие запасных частей на складе и полный пакет документов, включая оформление Декларации ЕАЭС для применения на опасных производственных объектах (ОПО). Для консультации звоните: +7 (922) 030-32-30 или пишите на spcryogas@yandex.ru.










