Описание
Агрегат поддержания давления АПД 50,0 — это профессиональное инженерное решение, разработанное для обеспечения постоянного рабочего давления в резервуарах, используемых для продолжительного складирования или перевозки сжиженной углекислоты. Главная функция установки — устранение повышения давления, вызванного внешними теплопритоками, что позволяет сохранять жидкую CO₂ практически неограниченное время без потерь от испарения.
Оборудование применяется в комплекте со стационарными хранилищами и транспортными цистернами. АПД-50,0 функционирует с жидкой двуокисью углерода 1-го сорта по ГОСТ 8050-85 и предназначен для работы с ёмкостями РДХ объёмом 50 м³, имеющими рабочее давление не менее 18 кгс/см².
Модификации АПД-50,0 с внешним и внутренним теплообменником
Компания СпецКриогаз Челябинск производит две основные модификации агрегата, предназначенные для разных типов систем хранения углекислоты:
АПД-50,0 с внутренним теплообменником
Данное исполнение холодильной установки разработано для резервуаров, конструктивно оснащённых встроенными медными трубчатыми теплообменниками. В таких системах нормализация давления происходит за счёт охлаждения и конденсации газообразной фазы CO₂ непосредственно на поверхности внутреннего теплообменного устройства.
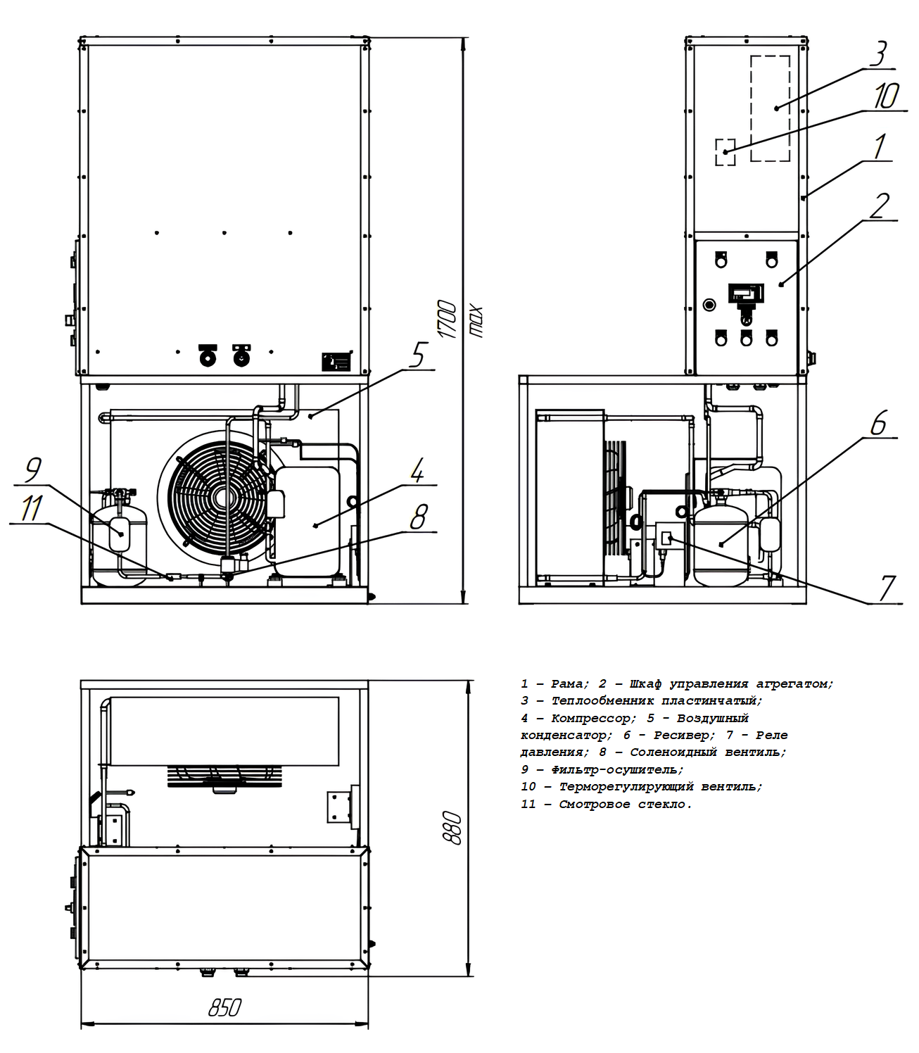
АПД-50,0 с внешним теплообменником
Эта версия АПД применяется для цистерн или резервуаров, не имеющих штатных теплообменников. Холодильный агрегат включает в себя компрессорно-конденсаторный модуль и высокоэффективный пластинчатый теплообменник, где осуществляется конденсация паров диоксида углерода.
Оба варианта исполнения проектируются и производятся персонально, с учётом технических параметров конкретной ёмкости заказчика.
Условия эксплуатации
Агрегат поддержания давления АПД-50,0 характеризуется высокой степенью автономности — он функционирует в полностью автоматическом режиме без постоянного контроля со стороны оператора. Конструкция установки позволяет использовать её в широком диапазоне температур окружающей среды: от -40°С до +40°С. Агрегат универсален с точки зрения размещения: возможен монтаж как внутри производственных помещений, так и на открытых площадках под навесом. Для ввода в эксплуатацию требуется только подключение к электросети и присоединение к коммуникациям резервуара с СО₂.
Производитель обеспечивает техническую поддержку и сервисное обслуживание на протяжении всего срока службы оборудования. Для подбора конфигурации и расчёта параметров агрегата необходимо предоставить сведения о объёме ёмкости и рабочем давлении в системе.
Преимущества холодильников АПД от СпецКриоГаз
Выбирая агрегаты поддержания давления АПД-50,0 от компании «СпецКриоГаз» (Челябинск), вы получаете современное и надежное оборудование, обладающее рядом важных преимуществ:
- Автоматизированное управление: работа в полностью автоматическом режиме без необходимости постоянного вмешательства оператора.
- Универсальность установки: возможность монтажа внутри зданий или на наружных площадках под навесом.
- Широкий температурный диапазон: стабильная эксплуатация при температурах от -40°С до +40°С.
- Надёжные комплектующие: использование компонентов от ведущих мировых производителей.
- Современная система управления: применение электронного блока для визуального мониторинга и точного регулирования давления.
- Комплексная защита: электрическая схема включает защиту от короткого замыкания, перепадов напряжения, а также аварийное отключение при неисправности компрессора или утечке хладагента.
- Экологическая безопасность: использование озонобезопасного хладагента R404A.
- Быстрый запуск: для начала эксплуатации требуется только подключение к электросети и коммуникациям СО₂.
- Простота обслуживания: конструкция обеспечивает удобный доступ ко всем узлам для проведения сервисных работ.
Для оформления заказа и получения консультации обращайтесь в СпецКриоГаз Челябинск: +7 (922) 030-32-30 или пишите на spcryogas@yandex.ru.








