Описание
Агрегат поддержания давления АПД-6,0 представляет собой промышленное криогенное оборудование, функциональное назначение которого заключается в автоматической стабилизации заданного уровня давления в емкостях и цистернах, содержащих жидкую двуокись углерода (углекислоту). Данное устройство также известно на рынке под названиями «CO2-холодильник» или «углекислотный холодильник». АПД-6 обеспечивает сохранение криогенных свойств продукта, исключая любые возможные потери.
Агрегат предназначен для эксплуатации в комплексе с резервуарами РДХ-6,0 номинальным объемом до 6 м³.
Принцип действия и основные достоинства:
- Автоматизация процесса контроля давления: Оборудование функционирует в автономном режиме, не требуя постоянного контроля со стороны оператора. Снижение избыточного давления осуществляется посредством охлаждения и последующей конденсации паровой фазы диоксида углерода на поверхности высокоэффективного теплообменного аппарата.
- Широкая сфера использования: АПД-6,0 демонстрирует высокую эффективность при интеграции как со стационарными резервуарами для продолжительного хранения (РДХ), так и с транспортными цистернами.
- Гарантия сохранения исходных характеристик продукта: Техника разработана для работы с жидкой двуокисью углерода высшего и первого сорта, соответствующей нормам ГОСТ 8050-85. Холодильная мощность установки полностью нивелирует внешние тепловые притоки, что предотвращает процесс испарения хранимого вещества.
- Проектирование под индивидуальные требования: Каждый агрегат проектируется и производится с учетом специфических параметров заказчика – объема резервуара и требуемого рабочего давления, что гарантирует высочайшую производительность, эффективность и отказоустойчивость.
- Соответствие техническим регламентам: АПД-6,0 поставляется с полным пакетом разрешительной документации, включая Декларацию соответствия требованиям Евразийского экономического союза (ЕАЭС), обязательную для применения на объектах, классифицируемых как опасные производственные (ОПО).
Модификации агрегатов АПД-6
Для решения различных технических задач предлагается два варианта конструктивного исполнения агрегата, оснащенных внутренним или внешним теплообменником:
- АПД-6,0 внешний – оптимальное решение для горизонтальных цистерн и резервуарных установок, не имеющих встроенных теплообменников. Данная модификация комплектуется автономным компрессорно-конденсаторным блоком и пластинчатым теплообменником.
- АПД-6,0 внутренний – предназначен для работы с горизонтальными и вертикальными резервуарами типа РДХ, которые по своей конструкции уже укомплектованы трубчатыми (как правило, медными) теплообменными устройствами.
Срок эксплуатации АПД-6 – 10 лет. На все АПД гарантия 2 года.
Звоните в СпецКриоГаз Челябинск +7 (922) 0303230 для подбора нужной модификации АПД-6,0 для ваших насущных задач.
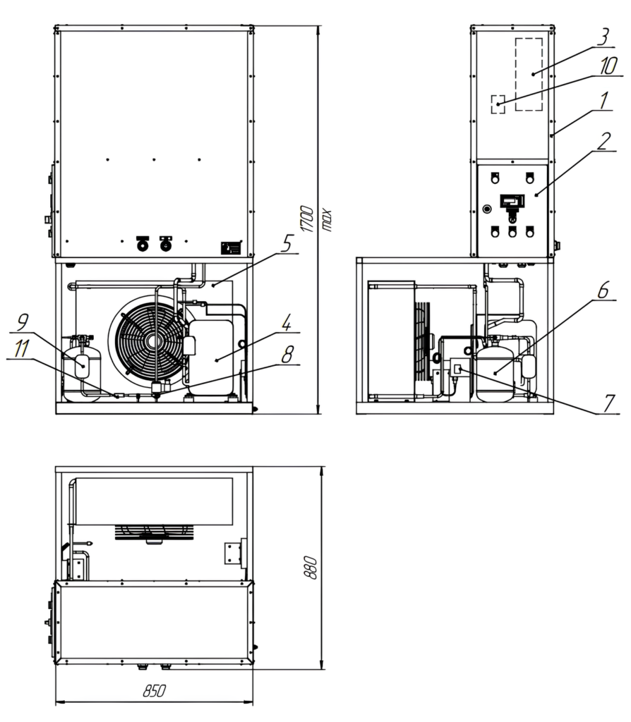
Схема конструкции агрегатов поддержания давления АПД-6
С внешним теплообменником:

1 – Рама; 2 – Шкаф управления агрегатом; 3 – Теплообменник пластинчатый;
4 – Компрессор; 5 – Воздушный конденсатор; 6 – Ресивер; 7 – Реле давления;
8 – Соленоидный вентиль; 9 – Фильтр-осушитель; 10 – Терморегулирующий вентиль; 11 – Смотровое стекло.
С внутреннним теплообменником:

1 – Рама; 2 – Шкаф управления агрегатом; 3 – Теплообменник; 4 – Компрессор; 5 – Воздушный конденсатор; 6 – Ресивер; 7 – Реле давления; 8 – Соленоидный вентиль; 9 – Фильтр-осушитель; 10 – Терморегулирующий вентиль; 11 – Смотровое стекло.








