Описание
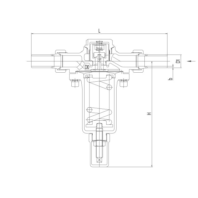
Регулятор давления ССК T291DE (еще эта модель называется DY22F-25P) — это клапан, который регулирует давление среды до рабочего значения, используя отрицательную обратную связь от контролируемого давления. Регулятор предназначен для точного контроля давления в различных криогенных системах. Регуляторы используются для газов и жидкостей и могут представлять собой единое устройство с настройкой давления, ограничителем и датчиком в одном корпусе или состоять из отдельных элементов: датчика давления, контроллера и расходного клапана.
Регулятор ССК T291DE применяется в широком спектре криогенного оборудования, включая системы хранения и транспортировки жидких газов, таких как кислород LO2, азот LN2, аргон LAr, сжиженный природный газ LNG.
Основные характеристики регулятора давления ССК T291DE включают номинальный диаметр от 10 мм до 50 мм, температурный диапазон от -196? до +80?, широкий диапазон регулирования давления до номинальных 2.5 МПа (или 4 МПа), высокую точность и надежность работы, а также устойчивость к воздействию низких температур. Он изготовлен из коррозионно-стойких материалов, что обеспечивает долговечность и надежность в эксплуатации.











